Casa dei farmacisti





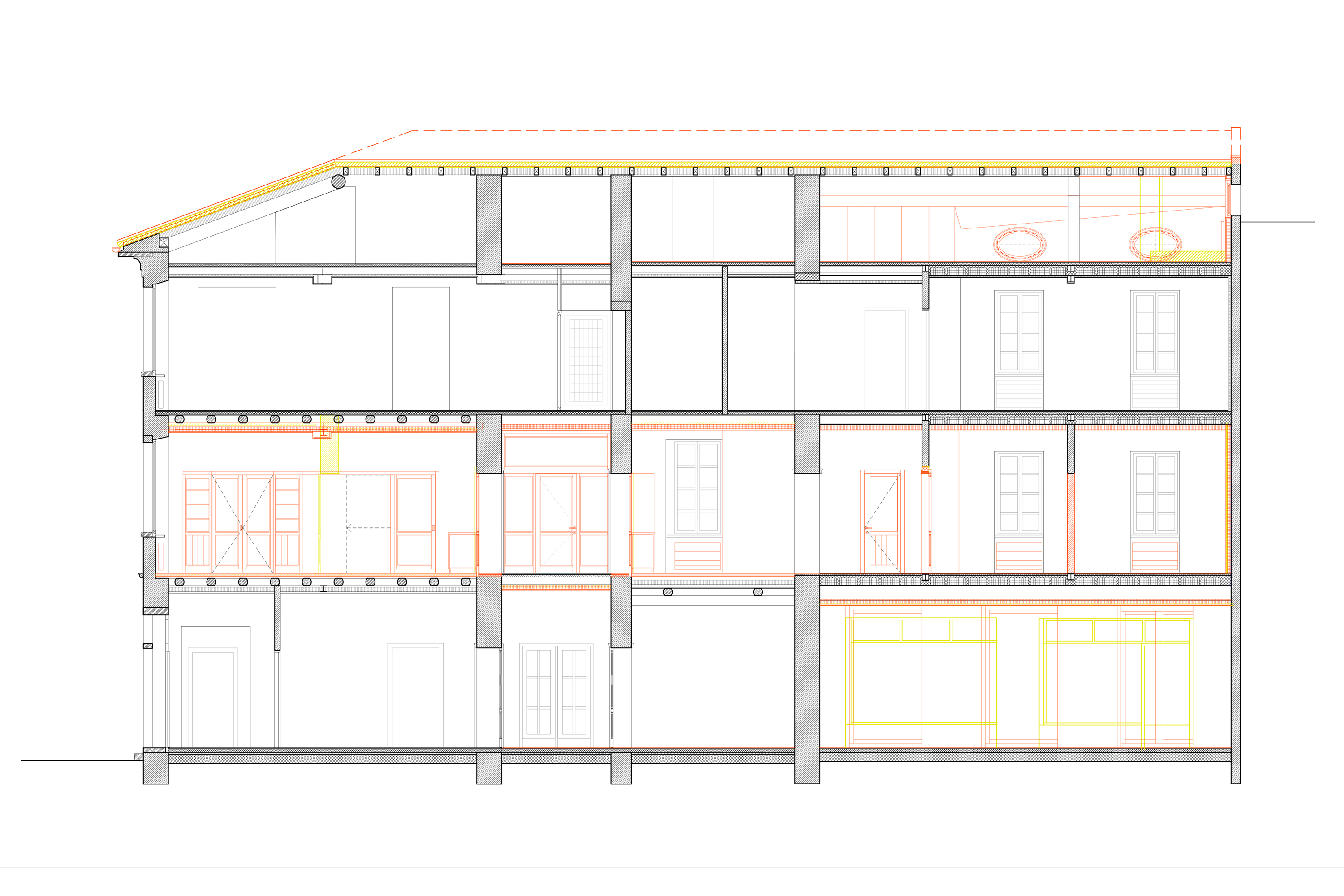
Der Gebäudekomplex befindet sich im historischen Dorfkern von Riva San Vitale. Er beinhaltet den Hauptbau mit zwei Wohnungen und Geschäftslokalen zur Strasse und einen Garten mit einem kleineren Haus Richtung See. Das Dach, das Dachgeschoss und die Geschäftsräume im Haupthaus werden saniert, während die Wohnräume im ersten Obergeschoss zu einer grosszügigen neuen Wohnung zusammengelegt werden.

Mit einer beschränkten Palette an tradionellen Elementen und Materialien, etwa Türen oder Einbaumöbel aus Eichen- und Kastanienholz oder Schwellen aus Arzo-Marmor wird der Durchgang zwischen den diversen Wohnräumen inszeniert. Die vielfältigen Ausblicke zum See, den Bergen und dem Dorfkern werden von traditionell konstruierten Fenstern aus Kastanie gerahmt.

Die Veränderungen im Innenraum spiegeln sich in der Fassade wider. Neue Schaufenster und elliptische Öffnungen werden eingefügt, um die chaotische Komposition zwischen den Fassaden der verschiedenen Gebäudeteile zu klären. In einer nächsten Phase wird der Garten belebt sowie das Gartenhaus renoviert und in Richtung See erweitert.

Umbau und Sanierung, abgeschlossen
Standort: Riva San Vitale, TI, Jahr: 2020-2022
Leistung: Entwurf, Ausführungsplanung, Baumanagement und Bauleitung
Bauleitung in Zusammenarbeit mit Arch. Curzio Rapelli